Skip to main content

NOTICE: Due to a lapse in annual appropriations, most of this website is not being updated. Learn more.

Form submissions will still be accepted but will not receive responses at this time. Sections of this site for programs using non-appropriated funds (such as NVLAP) or those that are excepted from the shutdown (such as CHIPS and NVD) will continue to be updated.

U.S. flag

An official website of the United States government

Official websites use .gov
A .gov website belongs to an official government organization in the United States.

Secure .gov websites use HTTPS
A lock ( ) or https:// means you’ve safely connected to the .gov website. Share sensitive information only on official, secure websites.

Bridge Column Inspection 1

Return to Bridge Construction Page

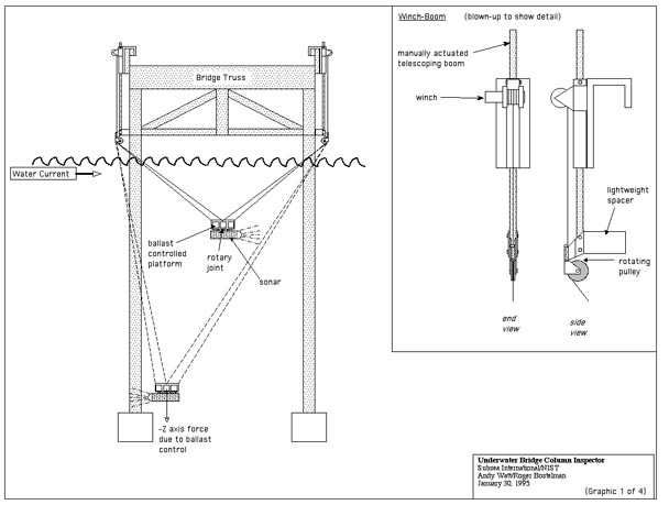
Concept of an Underwater Bridge Column Inspector RoboCrane.  The platform is ballast controlled with a rotary joint and attached sonar sensor.  Close-ups of the winch booms are shown in the upper right.

Br_Col_Insp1

Created August 24, 2011, Updated January 5, 2017
Was this page helpful?